Matulji (prodaja)
- Cena
- 250.000 €
-
Želite na boljše? Preverite stanovanjski kredit OTP banke.OglasOglaševalec OTP banka d.d.
Zakaj vidim ta oglas?
Uporaba omejenih podatkov za izbiro oglasov: oglasi, ki se vam prikazujejo v tej storitvi, lahko temeljijo na omejenih podatkih, kot so spletna stran ali aplikacija, ki jo trenutno uporabljate, vaša približna lokacija, vrsta naprave ali vsebine, s katerimi ste bili v interakciji (npr. za omejevanje pogostosti prikazovanja oglasov).
Šifra oglasa: 14384859
-
- Bivalna površina
- 72,00 m²
-
- Vrsta stanovanja
- 3-sobno
-
- Leto izgradnje
- 1968
Osnovne informacije
- Vrsta ponudbe
- Prodam
- Lokacija
- Izven Slovenije - Hrvaška, Primorsko-goranska, Matulji
- Umeščenost stanovanja
- V hiši
- Nadstropje
- 1.
- Skupno število nadstropij v stavbi
- 2
- Vrsta stanovanja
- 3-sobno
- Bivalna površina
- 72,00 m²
- Leto izgradnje
- 1968
- Leto zadnje prenove
- 2024
- Število parkirnih mest
- 3
- Balkon / terasa / atrij
- Balkon, Terasa
- Energetski razred
- C (51 do 100 kWh/m2a) - HR
- Vrsta cene
- Skupna cena
- Interna številka oglasa
- 126-70
Opis oglasa
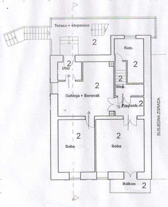
Naprodaj je privlačno stanovanje velikosti 75 m² v Matuljih - mirnem kraju, obdanem z zelenjem, na idealni lokaciji med morjem in naravo. Matulji so znani po prijetnem življenjskem okolju, odličnih prometnih povezavah z Opatijo in Reko ter razviti infrastrukturi, ki zagotavlja vse potrebno za kakovostno vsakdanje življenje. Stanovanje obsega vhodno dvorano, odprto kuhinjo z jedilnico in dnevno sobo, dve spalnici, hodnik, kopalnico, balkon in prostorno teraso, ki je idealna za sprostitev. Prodaja se popolnoma opremljeno, vključno z vsemi električnimi aparati - takojšnja vselitev, brez dodatnih vlaganj. V lasti ima tudi parcelo s tremi parkirnimi mesti in solastniški delež na dostopni cesti, kar še dodatno povečuje vrednost in funkcionalnost te nepremičnine. Dokumentacija je urejena: lastništvo 1/1, lastniški list, uporabno dovoljenje in energetska izkaznica. V bližini so vsi ključni objekti: šola in vrtec sta oddaljena le 3 minute hoje, avtobusna postaja je prav tako oddaljena 3 minute, trgovina pa le minuto hoje. Idealno za družino, par ali kot naložba za najem. Ta nepremičnina združuje funkcionalnost, udobje in kakovostno lokacijo v enem - vaš novi dom v središču Matuljev vas čaka. Provizija agencije za kupca znaša 3 % + DDV. Provizija krije vse storitve, povezane z nakupom, in se izplača le v primeru nakupa nepremičnine, ob sklenitvi prvega pravnega dejanja. Za dodatne informacije me lahko kontaktirate na 00385 976839504 ali na e-poštnem naslovu: ilijana@kaiser-immobilien.hr
ID KOD AGENCIJE: 126-70
Ilijana Mrljić
Agent s licencom u posredovanju u prometu nekretnina
Mob: +385976839504, +385995677888
E-mail: ilijana@kaiser-immobilien.hr
www.kaiser-immobilien.hr
ID KOD AGENCIJE: 126-70
Ilijana Mrljić
Agent s licencom u posredovanju u prometu nekretnina
Mob: +385976839504, +385995677888
E-mail: ilijana@kaiser-immobilien.hr
www.kaiser-immobilien.hr
Spletna povezava
Zemljevid
Dodatne informacije
Ogrevanje
Podatki o objektu
Kaiser-Immobilien d.o.o.
Vsi oglasi te trgovine
Uporabnik je telefonsko številko preveril v državi Hrvaška
- Naslov: Maršala Tita 97, 51410 Opatija, Hrvaška, Hrvaška
- URL: https://kaiser-immobilien.hr/
-
- Oglas je objavljen
- 20.05.2025. ob 00:33
- Do poteka še
- do prodaje
- Oglas je prikazan
- 83 -krat
Kaiser-Immobilien d.o.o.
Vsi oglasi te trgovine
Uporabnik je telefonsko številko preveril v državi Hrvaška
- Naslov: Maršala Tita 97, 51410 Opatija, Hrvaška, Hrvaška
- URL: https://kaiser-immobilien.hr/
-













