-
- Bivalna površina
- 79,01 m²
-
- Vrsta stanovanja
- 3-sobno
Osnovne informacije
- Vrsta ponudbe
- Prodam
- Lokacija
- Izven Slovenije - Hrvaška, Primorsko-goranska, Dobrinj
- Umeščenost stanovanja
- V večstanovanjski stavbi
- Vrsta stanovanja
- 3-sobno
- Bivalna površina
- 79,01 m²
- Število parkirnih mest
- 1
- Balkon / terasa / atrij
- Zaprt balkon
- Vrsta cene
- Skupna cena
- Interna številka oglasa
- S2479
Opis oglasa
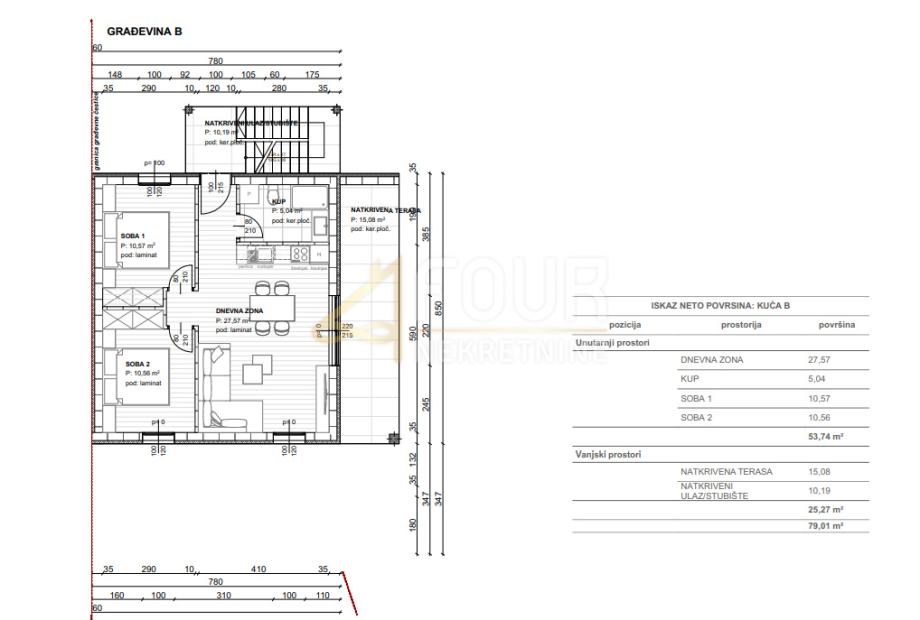
Prodaja se stan v novogradnji na otoku Krku, ki se nahaja v mirnem naselju Čižići, popoln za družinsko življenje ali kot naložba za počitnice. Zgradba je trenutno v gradnji, zaključek del pa je predviden za junij 2025. Ta prostoren stan v velikosti 79,01 m² se nahaja v drugem nadstropju dvojne stanovanjske zgradbe s tremi stanovanji na etažo, pri čemer ima vsak stan svoj vhod prek zunanjega stopnišča, kar zagotavlja zasebnost.
Obsega prostorno odprto dnevno sobo s kuhinjo in jedilnico v velikosti 27,57 m², ki ima izhod na veliko pokrito ložo velikosti 15,06 m², idealno za sprostitev na svežem zraku in uživanje v pogledu na morje. Dve udobni spalnici, vsaka velikosti 10,57 m², nudita zasebnost in udobje, pri čemer ima ena izhod na ložo. Kopalnica je moderno urejena in funkcionalna, s površino 5,04 m². Stanovanje vključuje tudi vhodni hodnik ter pokrit vhod velikosti 10,19 m².
Ta nepremičnina, ki se nahaja v mirnem okolju blizu morja, ponuja idealno kombinacijo sodobnega oblikovanja in funkcionalnosti, s čudovitim pogledom na morje. Popolna priložnost za vse, ki iščejo moden in udoben dom na privlačni lokaciji na otoku Krku!
Spoštovani kupci, agencijska provizija se zaračuna v skladu s Splošnimi pogoji poslovanja.
ID KOD AGENCIJE: S2479
Lorena Franolić
Agent s licencom
Mob: +385923333459
Tel: +385914944144, +38551619770
E-mail: lorenafranolic@four-nekretnine.hr
www.four-nekretnine.hr
Obsega prostorno odprto dnevno sobo s kuhinjo in jedilnico v velikosti 27,57 m², ki ima izhod na veliko pokrito ložo velikosti 15,06 m², idealno za sprostitev na svežem zraku in uživanje v pogledu na morje. Dve udobni spalnici, vsaka velikosti 10,57 m², nudita zasebnost in udobje, pri čemer ima ena izhod na ložo. Kopalnica je moderno urejena in funkcionalna, s površino 5,04 m². Stanovanje vključuje tudi vhodni hodnik ter pokrit vhod velikosti 10,19 m².
Ta nepremičnina, ki se nahaja v mirnem okolju blizu morja, ponuja idealno kombinacijo sodobnega oblikovanja in funkcionalnosti, s čudovitim pogledom na morje. Popolna priložnost za vse, ki iščejo moden in udoben dom na privlačni lokaciji na otoku Krku!
Spoštovani kupci, agencijska provizija se zaračuna v skladu s Splošnimi pogoji poslovanja.
ID KOD AGENCIJE: S2479
Lorena Franolić
Agent s licencom
Mob: +385923333459
Tel: +385914944144, +38551619770
E-mail: lorenafranolic@four-nekretnine.hr
www.four-nekretnine.hr
Spletna povezava
Zemljevid
Dodatne informacije
Podatki o objektu
Funkcionalnost in lastnosti
Lega stanovanja
fournekretnine
Vsi oglasi te trgovine
Uporabnik je telefonsko številko preveril v državi Hrvaška
- Naslov: Trpimirova ulica 4A, 51000 Rijeka, Hrvaška, Hrvaška
- URL: https://four-nekretnine.hr/
-
- Oglas je objavljen
- 18.12.2025. ob 12:52
- Do poteka še
- do prodaje
- Oglas je prikazan
- 179 -krat
fournekretnine
Vsi oglasi te trgovine
Uporabnik je telefonsko številko preveril v državi Hrvaška
- Naslov: Trpimirova ulica 4A, 51000 Rijeka, Hrvaška, Hrvaška
- URL: https://four-nekretnine.hr/
-






