Kostrena, Glavani - trisobno stanovanje z vrtom v moderni novogradnji (prodaja)
- Cena
- 880.000 €
-
OglasOglaševalec OTP banka d.d.
Zakaj vidim ta oglas?
Uporaba omejenih podatkov za izbiro oglasov: oglasi, ki se vam prikazujejo v tej storitvi, lahko temeljijo na omejenih podatkih, kot so spletna stran ali aplikacija, ki jo trenutno uporabljate, vaša približna lokacija, vrsta naprave ali vsebine, s katerimi ste bili v interakciji (npr. za omejevanje pogostosti prikazovanja oglasov).
Šifra oglasa: 15147527
-
- Bivalna površina
- 165,00 m²
-
- Vrsta stanovanja
- 4-sobno
-
- Leto izgradnje
- 2026
Osnovne informacije
- Vrsta ponudbe
- Prodam
- Lokacija
- Izven Slovenije - Hrvaška, Primorsko-goranska, Kostrena
- Umeščenost stanovanja
- V večstanovanjski stavbi
- Vrsta stanovanja
- 4-sobno
- Bivalna površina
- 165,00 m²
- Leto izgradnje
- 2026
- Število parkirnih mest
- 2
- Balkon / terasa / atrij
- Terasa
- Vrsta cene
- Skupna cena
- Interna številka oglasa
- 129-49
Opis oglasa
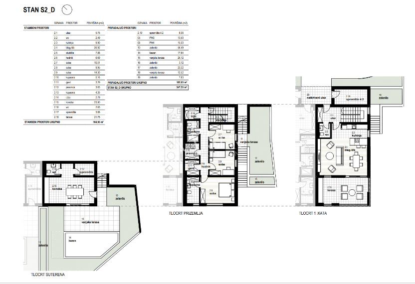
Kaiser Immobilien ponuja ekskluzivno moderno nepremičnino v Kostreni – stanovanje S2-D v izmeri 164,90 m² z zasebnim bazenom in čudovitim razgledom na Kvarnerski zaliv. V mirnem naselju Glavani v Kostreni, obdano z zelenjem in mediteranskim vzdušjem, se nahaja to luksuzno stanovanje, ki združuje sodoben arhitekturni izraz, vrhunsko gradnjo in popolno udobje. Prostorna notranjost v izmeri 164,90 m² je zasnovana kot trisobno stanovanje z dnevno sobo, modernimi kopalnicami, dodatnim straniščem, garderobno sobo in praktičnimi pomožnimi prostori. Odprt dnevni prostor s kuhinjo in jedilnico izžareva svetlobo in eleganco, velike steklene stene pa odpirajo spektakularen razgled na morje in kvarnerske otoke. Stanovanju pripada vrt v velikosti 182,60 m², skrbno urejen in okrepljen z zasebnim bazenom v velikosti 17,64 m², ki zagotavlja občutek popolne zasebnosti in miru. Poseben poudarek je bil namenjen izbiri materialov in tehnologiji gradnje – uporabljeni so bili le vrhunski materiali, stavba pa je opremljena s talnim ogrevanjem preko toplotne črpalke, klimatsko napravo, troslojnim parketom, najkakovostnejšo keramiko in aluminijastim stavbnim pohištvom z velikimi steklenimi površinami, ki prostoru zagotavljajo dodatno toplino in svetlobo. Stanovanju pripadata dve parkirni mesti in shramba, celoten projekt pa izstopa s premišljeno zasnovo in arhitekturo, ki zagotavlja dolgoročno vrednost in visoko raven bivalnega udobja. Lokacija v Kostreni odlično združuje mir in zasebnost z bližino vseh ugodnosti, potrebnih za sodobno življenje. V neposredni bližini so šole, vrtci, trgovine, sprehajališča, kolesarske steze in urejene plaže, središče Reke pa je oddaljeno le deset minut vožnje. Kostrena je znana po čudoviti obali, dolgem sprehajališču in mediteranski pokrajini, ki zagotavlja visoko kakovost življenja skozi vse leto. Poleg odličnih povezav z Reko in celotnim Kvarnerjem se Kostrena nahaja na idealni oddaljenosti od večjih evropskih mest. Do Ljubljane je približno 130 kilometrov, do Trsta 90 kilometrov, do Zagreba 160 kilometrov, do Benetk 220 kilometrov, medtem ko sta München in Dunaj oddaljena približno 500 kilometrov. Zahvaljujoč avtocesti in bližini letališča Reka je potovanje enostavno in hitro, kar še povečuje privlačnost te lokacije. Ta nepremičnina predstavlja popolno kombinacijo razkošja, udobja in moderne elegance. Idealna je za družinsko življenje, pa tudi kot naložba za elitni turizem. Kaiser Immobilien - vaš zanesljiv partner pri iskanju doma s pogledom na morje. Provizija agencije za kupca znaša 3 % + DDV. Provizija krije vse storitve, povezane z nakupom, in se plača le v primeru nakupa nepremičnine, ob sklenitvi pravnega dejanja. Za vse dodatne informacije se obrnite na: Marijana Cuculić Telefon: +385981869950 E-pošta: marijana.cuculic@kaiser-immobilien.hr Nelica Arsenijević Telefon: +385919254809 E-pošta: nelica@kaiser-immobilien.hr
ID KOD AGENCIJE: 129-49
Nelica Arsenijević
Agent s licencom u posredovanju u prometu nekretnina
Mob: +385919254809, +385995677888
E-mail: nelica@kaiser-immobilien.hr
www.kaiser-immobilien.hr
Marijana Svijetlana Cuculić
Agent posredovanja u prometu nekretnina
Mob: +385981869950, +385995677888
E-mail: marijana.cuculic@kaiser-immobilien.hr
www.kaiser-immobilien.hr
ID KOD AGENCIJE: 129-49
Nelica Arsenijević
Agent s licencom u posredovanju u prometu nekretnina
Mob: +385919254809, +385995677888
E-mail: nelica@kaiser-immobilien.hr
www.kaiser-immobilien.hr
Marijana Svijetlana Cuculić
Agent posredovanja u prometu nekretnina
Mob: +385981869950, +385995677888
E-mail: marijana.cuculic@kaiser-immobilien.hr
www.kaiser-immobilien.hr
Spletna povezava
Zemljevid
Dodatne informacije
Ogrevanje
Podatki o objektu
Kaiser-Immobilien d.o.o.
Vsi oglasi te trgovine
Uporabnik je telefonsko številko preveril v državi Hrvaška
- Naslov: Maršala Tita 97, 51410 Opatija, Hrvaška, Hrvaška
- URL: https://kaiser-immobilien.hr/
-
- Oglas je objavljen
- 10.11.2025. ob 00:28
- Do poteka še
- do prodaje
- Oglas je prikazan
- 45 -krat
Kaiser-Immobilien d.o.o.
Vsi oglasi te trgovine
Uporabnik je telefonsko številko preveril v državi Hrvaška
- Naslov: Maršala Tita 97, 51410 Opatija, Hrvaška, Hrvaška
- URL: https://kaiser-immobilien.hr/
-






