Stanovanje S4 v 1. nadstropju novogradnje v Kanfanarju (prodaja)
- Cena
- 278.400 €
Šifra oglasa: 11967218
-
- Bivalna površina
- 101,22 m²
-
- Vrsta stanovanja
- 3-sobno
-
- Leto izgradnje
- 2023
Osnovne informacije
- Vrsta ponudbe
- Prodam
- Lokacija
- Izven Slovenije - Hrvaška, Istrska, Kanfanar
- Nadstropje
- 1.
- Skupno število nadstropij v stavbi
- 3
- Vrsta stanovanja
- 3-sobno
- Bivalna površina
- 101,22 m²
- Leto izgradnje
- 2023
- Število parkirnih mest
- 1
- Energetski razred
- A+ (0 do 15 kWh/m2a) - HR
- Vrsta cene
- Skupna cena
- Interna številka oglasa
- 16587
Opis oglasa
Prodamo stanovanja v objektu, katerega gradnja se je pričela v 9. mesecu 2023. Projekt sestavljata dva povezana objekta s skupno 8 stanovanji, 5 stanovanj v enem in 3 v drugem objektu.
Stavbe se nahajajo v mirnem predelu Kanfanarja, obkrožene z luksuznimi vilami stran od prometnih cest.
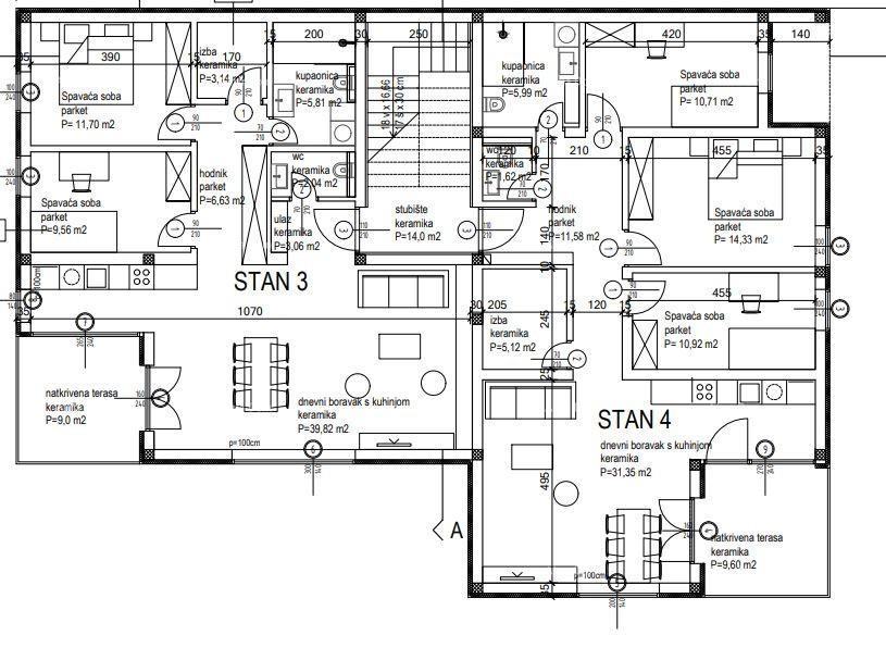
Trisobno stanovanje S4 se nahaja v 1. nadstropju stavbe s skupno 5 stanovanji, bivalne površine 101,22 m2 in je sestavljeno iz naslednjih prostorov:
hodnik - 11,58 m2
kopalnica - 5,99 m2
spalnica 1 - 10,71 m2
spalnica 2 - 10,92 m2
spalnica 3 - 14,33 m2
WC - 1,62 m2
soba/shramba - 5,12 m2
dnevna soba+kuhinja+jedilnica - 31,35 m2
pokrita terasa - 9,60 m2.
Vsakemu stanovanju bo pripadalo 1 parkirno mesto.
Kakovostna keramika je predvidena v vseh prostorih, razen v spalnicah in predprostoru, kjer bodo položene vrhunske vinilne talne obloge.
Gradnja se je začela v začetku jeseni 2023, dokončanje pa je predvideno konec leta 2024.
Sprejemamo rezervacije!
+385 91 611 5706
azra@almadominvest.com
+385 98 420 885
Stavbe se nahajajo v mirnem predelu Kanfanarja, obkrožene z luksuznimi vilami stran od prometnih cest.
Trisobno stanovanje S4 se nahaja v 1. nadstropju stavbe s skupno 5 stanovanji, bivalne površine 101,22 m2 in je sestavljeno iz naslednjih prostorov:
hodnik - 11,58 m2
kopalnica - 5,99 m2
spalnica 1 - 10,71 m2
spalnica 2 - 10,92 m2
spalnica 3 - 14,33 m2
WC - 1,62 m2
soba/shramba - 5,12 m2
dnevna soba+kuhinja+jedilnica - 31,35 m2
pokrita terasa - 9,60 m2.
Vsakemu stanovanju bo pripadalo 1 parkirno mesto.
Kakovostna keramika je predvidena v vseh prostorih, razen v spalnicah in predprostoru, kjer bodo položene vrhunske vinilne talne obloge.
Gradnja se je začela v začetku jeseni 2023, dokončanje pa je predvideno konec leta 2024.
Sprejemamo rezervacije!
+385 91 611 5706
azra@almadominvest.com
+385 98 420 885
Spletna povezava
Zemljevid
Dodatne informacije
Ogrevanje
Lega stanovanja
Kopalnica
ALMA DOM
Vsi oglasi te trgovine
Uporabnik je telefonsko številko preveril v državi Hrvaška
- Naslov: Hrvaška, Hrvaška
- URL: https://therealestatecroatia.com/
-
- Oglas je objavljen
- 09.12.2025. ob 07:24
- Do poteka še
- do prodaje
- Oglas je prikazan
- 149 -krat
ALMA DOM
Vsi oglasi te trgovine
Uporabnik je telefonsko številko preveril v državi Hrvaška
- Naslov: Hrvaška, Hrvaška
- URL: https://therealestatecroatia.com/
-



















