-
- Bivalna površina
- 84,90 m²
-
- Vrsta stanovanja
- 3-sobno
-
- Leto izgradnje
- 2025
Osnovne informacije
- Vrsta ponudbe
- Prodam
- Lokacija
- Izven Slovenije - Hrvaška, Istrska, Umag
- Umeščenost stanovanja
- V večstanovanjski stavbi
- Nadstropje
- 2.
- Vrsta stanovanja
- 3-sobno
- Bivalna površina
- 84,90 m²
- Leto izgradnje
- 2025
- Število parkirnih mest
- 1
- Balkon / terasa / atrij
- Terasa
- Vrsta cene
- Skupna cena
- Interna številka oglasa
- IS1516362
Opis oglasa
EKSKLUZIVNO!
(STANOVANJE E)
*Novogradnja v bližini Umaga, le 10 minut od morja.
Nepremičnina se nahaja v bližini Umaga, le 10 minut oddaljena od morja. Je del funkcionalne večstanovanjske stavbe s šestimi stanovanji. Objekt je na novo zgrajen in je grajen po visokih standardih kakovosti gradnje. Izvajalec in investitor sta zanesljiva, kar zagotavlja varnost bodočim lastnikom.
Fasada stavbe in terase so obrnjene proti zahodu, kar vam omogoča, da uživate v čudovitem pogledu na morje in sončne zahode. Streha objekta je ravna, kar omogoča postavitev sončnih kolektorjev in možnost izrabe obnovljivih virov energije.
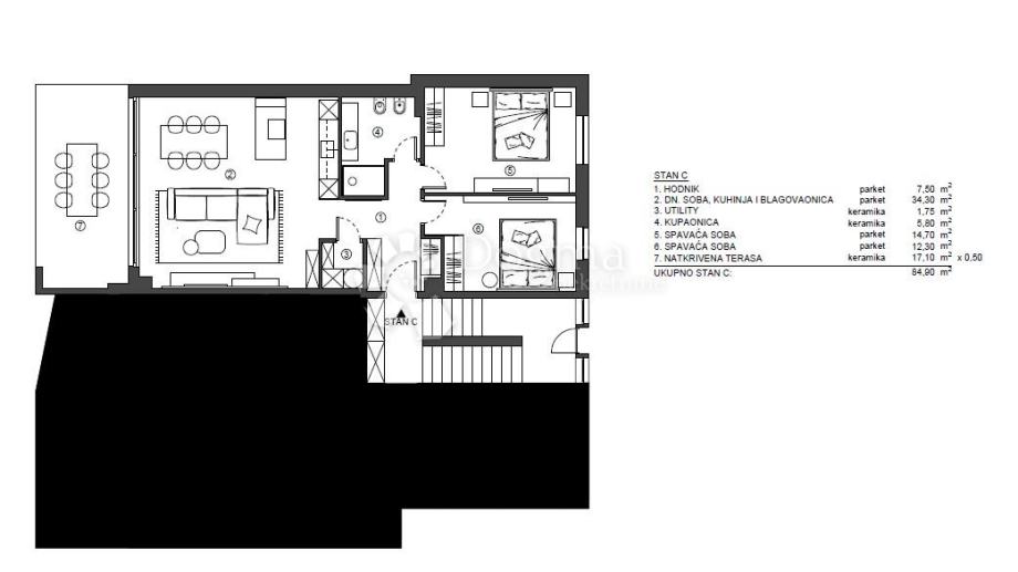
Stanovanje se nahaja v drugem nadstropju, njegova največja prednost pa je prostorna pokrita terasa 17,10m2 (8,55m2 NETO). Sestoji iz predsobe, dveh spalnic, shrambe, kopalnice in prostorne dnevne sobe s kuhinjo. Pred vhodom v stanovanje je vgradna omara, ki zagotavlja dodaten prostor za shranjevanje.
Kakovost stanovanj je visoka, z električnim talnim gretjem in klimatskimi napravami, ki zagotavljajo optimalno temperaturo v vseh prostorih. Stavbno pohištvo je aluminijasto s troslojnim steklom, ki zagotavlja dobro izolacijo pred zunanjimi vplivi.
Nepremičnini je v ceni vključeno 1 pokrito parkirno mesto, možen pa je dokup dodatnega pokritega ali nepokritega parkirnega mesta. Najemnikom sta na voljo tudi 2 parkirni mesti z elektriko.
V kleti objekta je 6 shramb, ena je vključena v ceno stanovanja.
* Čudovita lokacija
* Talno ogrevanje
* Vse sobe so klimatizirane
* Aluminijasto stavbno pohištvo, troslojno steklo
* 1 parkirno mesto vključeno v ceno
* možnost nakupa pokritega ali nepokritega parkirnega mesta
* V ceno je vključena 1 shramba
* 2 parkirni mesti z elektriko (na uporabo)
* Oddaljenost od plaže 1000m
* Mestna kanalizacija, internet
* Video nadzor
Navedena CENA NEPREMIČNINE VKLJUČUJE DDV, zato novemu lastniku ne bo treba plačati davka na promet nepremičnin (3%).
Kontaktirajte nas in rezervirajte svoj termin za ogled te čudovite nepremičnine.
Obrnite se na nas z zaupanjem,
Leonida Meglaj
zastopnik z licenco
+385 95 905 98 98
ID KOD AGENCIJE: IS1516362
Leonida Meglaj
Agent s licencom
Mob: 095/905-9898
Tel: 052/639-390
E-mail: leonida.meglaj@dogma-nekretnine.com
www.dogma-nekretnine.com
(STANOVANJE E)
*Novogradnja v bližini Umaga, le 10 minut od morja.
Nepremičnina se nahaja v bližini Umaga, le 10 minut oddaljena od morja. Je del funkcionalne večstanovanjske stavbe s šestimi stanovanji. Objekt je na novo zgrajen in je grajen po visokih standardih kakovosti gradnje. Izvajalec in investitor sta zanesljiva, kar zagotavlja varnost bodočim lastnikom.
Fasada stavbe in terase so obrnjene proti zahodu, kar vam omogoča, da uživate v čudovitem pogledu na morje in sončne zahode. Streha objekta je ravna, kar omogoča postavitev sončnih kolektorjev in možnost izrabe obnovljivih virov energije.
Stanovanje se nahaja v drugem nadstropju, njegova največja prednost pa je prostorna pokrita terasa 17,10m2 (8,55m2 NETO). Sestoji iz predsobe, dveh spalnic, shrambe, kopalnice in prostorne dnevne sobe s kuhinjo. Pred vhodom v stanovanje je vgradna omara, ki zagotavlja dodaten prostor za shranjevanje.
Kakovost stanovanj je visoka, z električnim talnim gretjem in klimatskimi napravami, ki zagotavljajo optimalno temperaturo v vseh prostorih. Stavbno pohištvo je aluminijasto s troslojnim steklom, ki zagotavlja dobro izolacijo pred zunanjimi vplivi.
Nepremičnini je v ceni vključeno 1 pokrito parkirno mesto, možen pa je dokup dodatnega pokritega ali nepokritega parkirnega mesta. Najemnikom sta na voljo tudi 2 parkirni mesti z elektriko.
V kleti objekta je 6 shramb, ena je vključena v ceno stanovanja.
* Čudovita lokacija
* Talno ogrevanje
* Vse sobe so klimatizirane
* Aluminijasto stavbno pohištvo, troslojno steklo
* 1 parkirno mesto vključeno v ceno
* možnost nakupa pokritega ali nepokritega parkirnega mesta
* V ceno je vključena 1 shramba
* 2 parkirni mesti z elektriko (na uporabo)
* Oddaljenost od plaže 1000m
* Mestna kanalizacija, internet
* Video nadzor
Navedena CENA NEPREMIČNINE VKLJUČUJE DDV, zato novemu lastniku ne bo treba plačati davka na promet nepremičnin (3%).
Kontaktirajte nas in rezervirajte svoj termin za ogled te čudovite nepremičnine.
Obrnite se na nas z zaupanjem,
Leonida Meglaj
zastopnik z licenco
+385 95 905 98 98
ID KOD AGENCIJE: IS1516362
Leonida Meglaj
Agent s licencom
Mob: 095/905-9898
Tel: 052/639-390
E-mail: leonida.meglaj@dogma-nekretnine.com
www.dogma-nekretnine.com
Spletna povezava
Zemljevid
Dodatne informacije
Ogrevanje
Podatki o objektu
Dogma nekretnine
Vsi oglasi te trgovine
Uporabnik je telefonsko številko preveril v državi Hrvaška
- Naslov: Hrvaška, Hrvaška
- E-pošta: info@dogma-nekretnine.com
-
- Oglas je objavljen
- 12.12.2025. ob 15:20
- Do poteka še
- do prodaje
- Oglas je prikazan
- 169 -krat
Dogma nekretnine
Vsi oglasi te trgovine
Uporabnik je telefonsko številko preveril v državi Hrvaška
- Naslov: Hrvaška, Hrvaška
- E-pošta: info@dogma-nekretnine.com
-

















