-
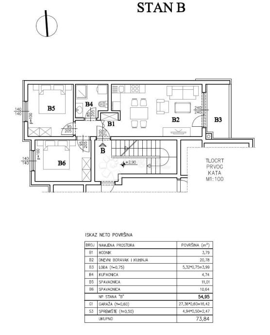
- Bivalna površina
- 54,95 m²
-
- Vrsta stanovanja
- 3-sobno
Osnovne informacije
- Vrsta ponudbe
- Prodam
- Lokacija
- Izven Slovenije - Hrvaška, Istrska, Pula
- Umeščenost stanovanja
- V večstanovanjski stavbi
- Nadstropje
- 1.
- Skupno število nadstropij v stavbi
- 2
- Vrsta stanovanja
- 3-sobno
- Bivalna površina
- 54,95 m²
- Število parkirnih mest
- 1
- Balkon / terasa / atrij
- Balkon, Terasa
- Vrsta cene
- Skupna cena
- Interna številka oglasa
- IS1518882
Opis oglasa
Lokacija in predstavitev Na atraktivni lokaciji, na vhodu v Pulj, se nahaja nov projekt "Šijana Gate Residence", ki vključuje gradnjo sodobnega stanovanjskega kompleksa šestih stavb s skupno 24 stanovanji. Popolnoma zasebni kompleks se bo nahajal v priljubljeni mestni četrti "Šijana" in v neposredni bližini vseh pomembnih objektov (šole, vrtci, nakupovalni centri, javni prevoz). Predviden zaključek gradnje je pomlad 2027, z vsemi potrebnimi dovoljenji in energetskim certifikatom. Razporeditev in površina: Projekt predvideva štiri stanovanja na stavbo s površino med 60m2 in 88m2 - dve v prvem nadstropju, dve v drugem nadstropju. Z učinkovito razporeditvijo bo vsako stanovanje imelo dve spalnici, prostorno kuhinjo z dnevno sobo, kopalnico in ložo. Projekt vključuje tudi lastno garažo ali zunanje parkirno mesto ter shrambo za vsako stanovanjsko enoto v pritličju stavbe. Materiali in oprema: Notranja oprema stanovanjskih stavb bo izpolnjevala visoke standarde kakovosti (energijski razred A/A+): Toplotnoizolacijska fasada (ETICS) in visoko učinkovita toplotna izolacija debeline 10 cm (mineralna volna/EPS). Protivlomna vhodna vrata, zunanje stavbno pohištvo iz PVC profilov z dvoslojnim IZO steklom, polnjenim z argonom, in rolete. Vsi prostori stanovanj bodo opremljeni z vrhunsko keramiko sodobnega dizajna, skrbno izbrano glede na vzdržljivost in estetiko. Na ložah bo za dodatno varnost in udobje bivanja uporabljena protidrsna keramika. Ogrevanje in hlajenje vsake enote s klimatsko napravo, v kopalnici, dnevni sobi in kuhinji pa električno talno ogrevanje. Kopalnice so opremljene tudi z električnimi radiatorji (sušilniki) s termostati. Zunanjost: Okolica stavbe vključuje zelene površine z avtohtonimi istrskimi rastlinami, trato z avtomatskim namakanjem, tlakovane poti in dovoze, živo mejo za zasebnost, LED razsvetljavo z zaznavanjem gibanja ter trajnostni drenažni sistem s podzemnimi odtoki in absorpcijskim vodnjakom. Lokacija Odlične prometne povezave - neposredna bližina glavne mestne ceste (Cesta Šijana), hiter dostop do središča Pulja, avtobusne postaje in izvoza na Istrski ipsilon. Bližina nakupovalnih središč - le nekaj minut hoje do Lidla, Plodina, Kauflanda, Pevexa, Bauhausa in drugih trgovin - idealno za vsakdanje življenje. Zelenje in rekreacija - oddaljenost do Carske šume (Parkovnega gozda Šijana) je le nekaj minut - idealno za sprehode, tek, kolesarjenje in družinske aktivnosti v naravi. Območje, usmerjeno v družine - v bližini so vrtci, osnovna šola Šijana, športni objekti in otroška igrišča. Urbano območje v razvoju - Šijana se razvija kot moderna mestna četrt z novimi stavbami, zato vrednost nepremičnin na tem območju nenehno narašča. Mirna in varna lokacija - naselje je stanovanjskega značaja, stran od mestnega hrupa, a še vedno zelo blizu vseh pomembnih ugodnosti. Za več informacij nas kontaktirajte z zaupanjem. Gabrijela Lovrinović Zastopnik z licenco 097 7617 229 gabrijela.lovrinovic@dogma-nekretnine.com Filip Crnjac Zastopnik z licenco 091 6001 216
ID KOD AGENCIJE: IS1518882
Filip Crnjac
Agent s licencom
Mob: 091/600-1216
Tel: 052 645 444
E-mail: filip.crnjac@dogma-nekretnine.com
www.dogma-istra.com
Gabrijela Lovrinović
Agent s licencom
Mob: 097/761-7229
Tel: 052 770 811
E-mail: gabrijela.lovrinovic@dogma-nekretnine.com
www.dogma-istra.com
ID KOD AGENCIJE: IS1518882
Filip Crnjac
Agent s licencom
Mob: 091/600-1216
Tel: 052 645 444
E-mail: filip.crnjac@dogma-nekretnine.com
www.dogma-istra.com
Gabrijela Lovrinović
Agent s licencom
Mob: 097/761-7229
Tel: 052 770 811
E-mail: gabrijela.lovrinovic@dogma-nekretnine.com
www.dogma-istra.com
Spletna povezava
Zemljevid
Dodatne informacije
Ogrevanje
Podatki o objektu
Možnosti parkiranja
Dogma nekretnine
Vsi oglasi te trgovine
Uporabnik je telefonsko številko preveril v državi Hrvaška
- Naslov: Hrvaška, Hrvaška
- E-pošta: info@dogma-nekretnine.com
-
- Oglas je objavljen
- 28.11.2025. ob 15:36
- Do poteka še
- do prodaje
- Oglas je prikazan
- 420 -krat
Dogma nekretnine
Vsi oglasi te trgovine
Uporabnik je telefonsko številko preveril v državi Hrvaška
- Naslov: Hrvaška, Hrvaška
- E-pošta: info@dogma-nekretnine.com
-











