RIJEKA, KOSTRENA - ekskluzivno dupleks stanovanje 147m2 novogradnja s (prodaja)
- Cena
- 617.400 €
Šifra oglasa: 15015924
-
- Bivalna površina
- 147,00 m²
-
- Vrsta stanovanja
- 4-sobno
Osnovne informacije
- Vrsta ponudbe
- Prodam
- Lokacija
- Izven Slovenije - Hrvaška, Primorsko-goranska, Kostrena
- Umeščenost stanovanja
- V hiši
- Nadstropje
- Klet
- Skupno število nadstropij v stavbi
- 1
- Vrsta stanovanja
- 4-sobno
- Bivalna površina
- 147,00 m²
- Število parkirnih mest
- 2
- Balkon / terasa / atrij
- Balkon, Zaprt balkon, Terasa
- Energetski razred
- A+ (0 do 15 kWh/m2a) - HR
- Vrsta cene
- Skupna cena
- Interna številka oglasa
- 41819
Opis oglasa
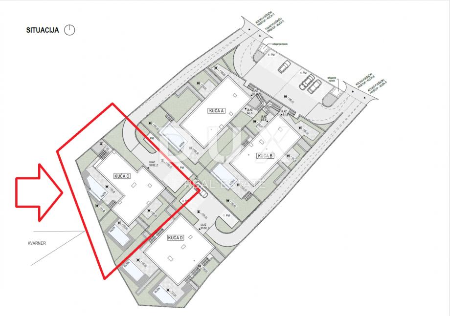
RIJEKA, KOSTRENA - ekskluzivno dvoetažno stanovanje 147m2, novogradnja s čudovitim pogledom na morje in bazen + vrt 151,75m2 - S1-C
Ponujamo vam nepremičnino, ki vam nudi sodoben dizajn in eleganco, udobje in vrhunsko opremo ter se nahaja na lepi, mirni lokaciji v bližini javnega prevoza, šol, vrtcev, trgovskih centrov in deset minut vožnje od Reke. Kompleks 4 stanovanjskih objektov s skupno 8 apartmaji se nahaja severno od jadranske magistrale na območju "Zelene Kostrene" od koder je lep razgled na celoten Kvarnerski zaliv. V neposredni bližini je 10 kilometrov urejenih pohodniških, kolesarskih in fitnes poti, ki potekajo po najvišjih predelih Kostrene od vrha Solin do vrha Sopalj. Dostop do hiš je urejen z zgornje ceste, kjer je predvidena ureditev in razširitev obstoječe ceste. Vsaki hiši pripadajo štiri zunanja parkirna mesta oziroma dve parkirni mesti na stanovanjsko enoto. Vsaka hiša je sestavljena iz dveh apartmajev. Stanovanja na zgornjih dveh parcelah se nahajajo eno nad drugim, stanovanja na spodnjih dveh parcelah pa eno poleg drugega. Vsakemu stanovanju pripada del vrta. HIŠA C stanovanje S1 - C: BIVALNI PROSTORI: - dnevna soba / jedilnica 36,02 - kuhinja 9,59 - shramba 3,38 - WC 2,69 - vhod 5,72 - stopnišče 5,65 - soba 18,18 - soba 13,58 - soba 13,58 - kopalnica 4,44 - pralnica / shramba 3,03 - stopnišče 7,73 - hodnik 6,45 - kopalnica 4,57 - terasa 12,39 SKUPAJ BIVALNE POVRŠINE: 147,00 m² PRIRUČNI PROSTORI - shramba 4,57 - zelenica 9,65 - zelenica 26,22 - zunanja terasa 45,00 - bazen 21,22 - zelenica 18,24 - parkirno mesto 1 13,50 - parkirno mesto 2 13.35 PRIKLJUČENI PROSTORI SKUPAJ: 151,75 m² STANOVANJE S1-C SKUPAJ: 298,75 m² To luksuzno stanovanje je zasnovano za maksimalno udobje. OPREMA: Hiša v kateri se nahaja stanovanje je kvalitetno grajena in luksuzno opremljena, vsi vgrajeni materiali, talne in stenske obloge so po najvišjih standardih. - fasadna izolacija debeline 10 cm - talno ogrevanje - toplotne črpalke - vrhunsko alu stavbno pohištvo. Stanovanje ima lasten vrt in 2 parkirni mesti. CENA: Navedena cena se nanaša na popolnoma dokončan objekt na ključ, brez pohištva. Cena vključuje DDV, kupec je oproščen plačila davka na nepremičnine. V primeru nakupa pri podjetju, registriranem na Hrvaškem, je po prodaji možno celotno vračilo DDV. Čista in urejena lastnina. Vsekakor lepa nepremičnina za razkošno družinsko življenje, primerna pa tudi kot naložba v obliki elitnega turizma. UNIKATNA NEPREMIČNINA ZAGOTOVO VREDNA VAŠE POZORNOSTI NA ODLIČNI LOKACIJI!!! KOSTRENA Kostrena je staro priljubljeno obmorsko mesto, prvič omenjeno v začetku 15. stoletja. Prvo občinsko samostojnost je dobila leta 1874, a jo je obdržala zelo kratek čas, le dve leti. Razdeljena je na dva dela, sv. Lucije in sv. Barbare, po imenih dveh cerkva, ki obstajata na njenem območju. Kostrena se nahaja v neposredni bližini mesta Reka, obkrožena z zalivom Martinšćica in Bakarskim zalivom. Polotok Kostrena je dolg približno 10 kilometrov in se blago spušča proti obali. Po vsej dolžini se nahajajo čudovite plaže, ki jih poleti obišče na tisoče kopalcev. Najbolj znane in obiskane so tiste v zalivu Žurkovo, sledijo pa jim Smokvinovo, Svežanj, Spužvina, Podražica, Nova voda in Perilo. Kostrena je sestavljena iz približno dvajsetih naselij, številna so dobila imena po družinah, danes pa so najbolj naseljena Vrh Martinšćice, Glavani, Sv. Lucija, Rožmanići, Doričići in Paveki. Značilno kraško območje s sredozemskim rastlinjem in znamenito kostrensko gromačo ter milo podnebje, ki se ponekod prepusti močnim sunkom burje, so značilnosti te pokrajine.
Cenjene stranke, agencijska provizija se obračunava v skladu s Splošnimi pogoji poslovanja: www.dux-nekretnine.hr/opci-uvjeti-poslovanja
ID KOD AGENCIJE: 41819
Patrik Hrštić
Agent s licencom
Mob: +385 91 270 3979
Tel: +385 91 480 8808
E-mail: patrik@dux-nekretnine.hr
www.dux-opatija.com
Rene Nemarnik
Agent s licencom
Mob: +385 91 737 5328
Tel: +385 91 480 8808
E-mail: rene@dux-nekretnine.hr
www.dux-nekretnine.hr
Ponujamo vam nepremičnino, ki vam nudi sodoben dizajn in eleganco, udobje in vrhunsko opremo ter se nahaja na lepi, mirni lokaciji v bližini javnega prevoza, šol, vrtcev, trgovskih centrov in deset minut vožnje od Reke. Kompleks 4 stanovanjskih objektov s skupno 8 apartmaji se nahaja severno od jadranske magistrale na območju "Zelene Kostrene" od koder je lep razgled na celoten Kvarnerski zaliv. V neposredni bližini je 10 kilometrov urejenih pohodniških, kolesarskih in fitnes poti, ki potekajo po najvišjih predelih Kostrene od vrha Solin do vrha Sopalj. Dostop do hiš je urejen z zgornje ceste, kjer je predvidena ureditev in razširitev obstoječe ceste. Vsaki hiši pripadajo štiri zunanja parkirna mesta oziroma dve parkirni mesti na stanovanjsko enoto. Vsaka hiša je sestavljena iz dveh apartmajev. Stanovanja na zgornjih dveh parcelah se nahajajo eno nad drugim, stanovanja na spodnjih dveh parcelah pa eno poleg drugega. Vsakemu stanovanju pripada del vrta. HIŠA C stanovanje S1 - C: BIVALNI PROSTORI: - dnevna soba / jedilnica 36,02 - kuhinja 9,59 - shramba 3,38 - WC 2,69 - vhod 5,72 - stopnišče 5,65 - soba 18,18 - soba 13,58 - soba 13,58 - kopalnica 4,44 - pralnica / shramba 3,03 - stopnišče 7,73 - hodnik 6,45 - kopalnica 4,57 - terasa 12,39 SKUPAJ BIVALNE POVRŠINE: 147,00 m² PRIRUČNI PROSTORI - shramba 4,57 - zelenica 9,65 - zelenica 26,22 - zunanja terasa 45,00 - bazen 21,22 - zelenica 18,24 - parkirno mesto 1 13,50 - parkirno mesto 2 13.35 PRIKLJUČENI PROSTORI SKUPAJ: 151,75 m² STANOVANJE S1-C SKUPAJ: 298,75 m² To luksuzno stanovanje je zasnovano za maksimalno udobje. OPREMA: Hiša v kateri se nahaja stanovanje je kvalitetno grajena in luksuzno opremljena, vsi vgrajeni materiali, talne in stenske obloge so po najvišjih standardih. - fasadna izolacija debeline 10 cm - talno ogrevanje - toplotne črpalke - vrhunsko alu stavbno pohištvo. Stanovanje ima lasten vrt in 2 parkirni mesti. CENA: Navedena cena se nanaša na popolnoma dokončan objekt na ključ, brez pohištva. Cena vključuje DDV, kupec je oproščen plačila davka na nepremičnine. V primeru nakupa pri podjetju, registriranem na Hrvaškem, je po prodaji možno celotno vračilo DDV. Čista in urejena lastnina. Vsekakor lepa nepremičnina za razkošno družinsko življenje, primerna pa tudi kot naložba v obliki elitnega turizma. UNIKATNA NEPREMIČNINA ZAGOTOVO VREDNA VAŠE POZORNOSTI NA ODLIČNI LOKACIJI!!! KOSTRENA Kostrena je staro priljubljeno obmorsko mesto, prvič omenjeno v začetku 15. stoletja. Prvo občinsko samostojnost je dobila leta 1874, a jo je obdržala zelo kratek čas, le dve leti. Razdeljena je na dva dela, sv. Lucije in sv. Barbare, po imenih dveh cerkva, ki obstajata na njenem območju. Kostrena se nahaja v neposredni bližini mesta Reka, obkrožena z zalivom Martinšćica in Bakarskim zalivom. Polotok Kostrena je dolg približno 10 kilometrov in se blago spušča proti obali. Po vsej dolžini se nahajajo čudovite plaže, ki jih poleti obišče na tisoče kopalcev. Najbolj znane in obiskane so tiste v zalivu Žurkovo, sledijo pa jim Smokvinovo, Svežanj, Spužvina, Podražica, Nova voda in Perilo. Kostrena je sestavljena iz približno dvajsetih naselij, številna so dobila imena po družinah, danes pa so najbolj naseljena Vrh Martinšćice, Glavani, Sv. Lucija, Rožmanići, Doričići in Paveki. Značilno kraško območje s sredozemskim rastlinjem in znamenito kostrensko gromačo ter milo podnebje, ki se ponekod prepusti močnim sunkom burje, so značilnosti te pokrajine.
Cenjene stranke, agencijska provizija se obračunava v skladu s Splošnimi pogoji poslovanja: www.dux-nekretnine.hr/opci-uvjeti-poslovanja
ID KOD AGENCIJE: 41819
Patrik Hrštić
Agent s licencom
Mob: +385 91 270 3979
Tel: +385 91 480 8808
E-mail: patrik@dux-nekretnine.hr
www.dux-opatija.com
Rene Nemarnik
Agent s licencom
Mob: +385 91 737 5328
Tel: +385 91 480 8808
E-mail: rene@dux-nekretnine.hr
www.dux-nekretnine.hr
Spletna povezava
Zemljevid
Dodatne informacije
Ogrevanje
Podatki o objektu
Možnosti parkiranja
Dux nekretnine
Vsi oglasi te trgovine
Uporabnik je telefonsko številko preveril v državi Hrvaška
- Naslov: Tizianova 8, 51000 Rijeka, Hrvaška, Hrvaška
- URL: https://www.dux-nekretnine.hr/
-
- Oglas je objavljen
- 21.11.2025. ob 10:04
- Do poteka še
- do prodaje
- Oglas je prikazan
- 103 -krat
Dux nekretnine
Vsi oglasi te trgovine
Uporabnik je telefonsko številko preveril v državi Hrvaška
- Naslov: Tizianova 8, 51000 Rijeka, Hrvaška, Hrvaška
- URL: https://www.dux-nekretnine.hr/
-












